Save
Ask
Tour
Hide
$210,000
19 Days On Site
8283 Blue Fire LaneFranklin, TX 77856
For Sale|Manufactured Home|Active
4
Beds
3
Total Baths
3
Full Baths
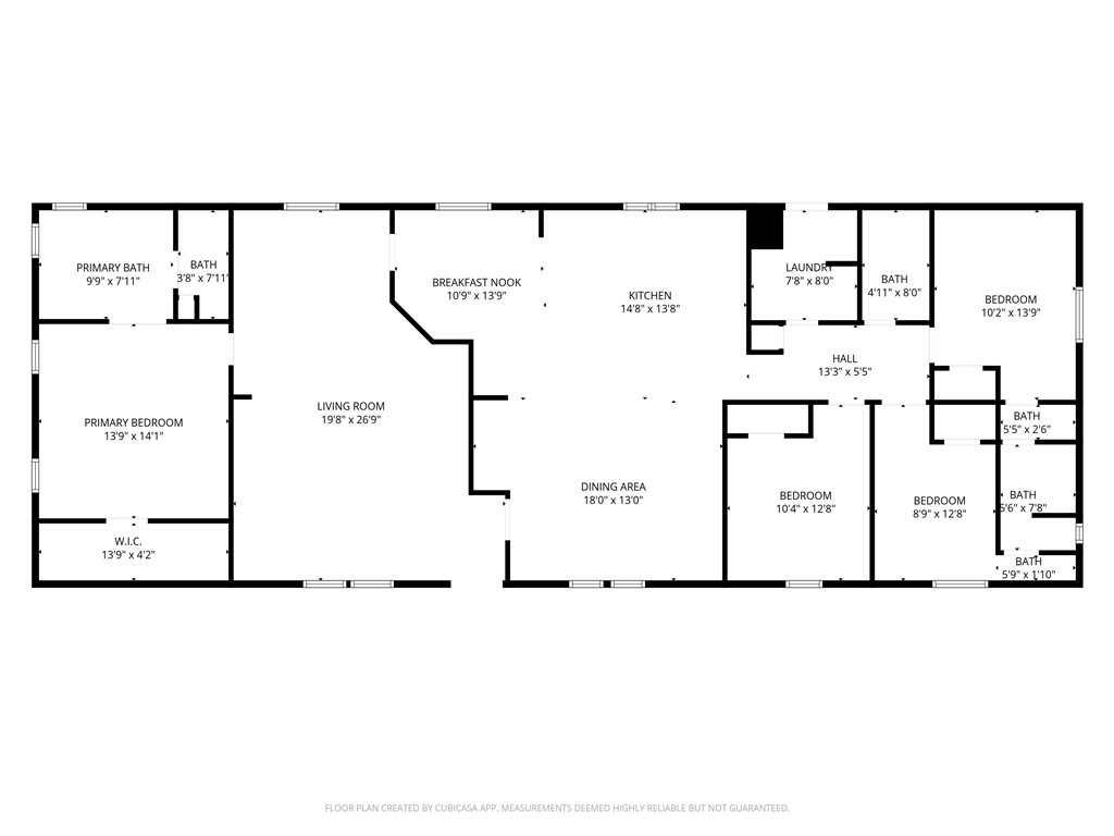
2,128
SqFt
$99
/SqFt
2002
Built
Subdivision:
Other
County:
Robertson
Listing courtesy of Loren Corgey of Full Circle Texas
Call Now: (817) 525-0851
Is this the listing for you? We can help make it yours.
(817) 525-0851Upcoming Open Houses
Sun, Mar 1, 1:30 PM - 3:30 PM




Save
Ask
Tour
Hide
Mortgage Calculator
Monthly Payment (Est.)
$958Calculator powered by Showcase IDX, a Constellation1 Company. Copyright ©2026 Information is deemed reliable but not guaranteed.
Welcome to this 4 bedroom, 3 bath home on 1.46 acres in Franklin, TX. Enjoy country living with NO HOA and the convenience of being 12 miles from town. Inside the home you will find a spacious and functional layout with multiple living and dining areas centered around the kitchen and island. Outside, the property offers many possibilities from outdoor gatherings to gardening or relaxing while taking in the scenery.
Save
Ask
Tour
Hide
Listing Snapshot
Price
$210,000
Days On Site
19 Days
Bedrooms
4
Inside Area (SqFt)
2,128 sqft
Total Baths
3
Full Baths
3
Partial Baths
N/A
Lot Size
1.46 Acres
Year Built
2002
MLS® Number
26001441
Status
Active
Property Tax
N/A
HOA/Condo/Coop Fees
N/A
Sq Ft Source
Assessor
Friends & Family
Recent Activity
| 2 days ago | Price changed to $210,000 | |
| 2 days ago | Listing updated with changes from the MLS® | |
| 3 weeks ago | Listing first seen on site |
General Features
Acres
1.46
Levels
One
Number Of Stories
1
Parking
None
Property Sub Type
Manufactured Home
SqFt Total
2128
Utilities
Electricity AvailableWater Available
Water Source
Public
Interior Features
Appliances
CooktopElectric RangeElectric Water HeaterDisposalRefrigerator
Cooling
Ceiling Fan(s)Central AirElectric
Flooring
Vinyl
Heating
CentralElectric
Interior
BarCeiling Fan(s)Dry BarKitchen Island
Save
Ask
Tour
Hide
Exterior Features
Fencing
Partial
Roof
Shingle
Community Features
Accessibility Features
Accessible EntranceAccessible Approach with Ramp
Financing Terms Available
CashConventional
MLS Area
Robertson
School District
Franklin
Schools
School District
Franklin
Elementary School
Unknown
Middle School
Unknown
High School
Unknown
Listing courtesy of Loren Corgey of Full Circle Texas
Listing information is provided by Participants of the Bryan-College Station Regional MLS. IDX information is provided exclusively for personal, non-commercial use, and may not be used for any purpose other than to identify prospective properties consumers may be interested in purchasing. Information is deemed reliable but not guaranteed. Copyright 2026, Bryan-College Station Regional MLS.
Last checked: 2026-02-24 01:20 PM UTC
Listing information is provided by Participants of the Bryan-College Station Regional MLS. IDX information is provided exclusively for personal, non-commercial use, and may not be used for any purpose other than to identify prospective properties consumers may be interested in purchasing. Information is deemed reliable but not guaranteed. Copyright 2026, Bryan-College Station Regional MLS.
Last checked: 2026-02-24 01:20 PM UTC
Neighborhood & Commute
Source: Walkscore
Save
Ask
Tour
Hide

Did you know? You can invite friends and family to your search. They can join your search, rate and discuss listings with you.